une nouvelle mission pour un ancien couvent

une nouvelle mission pour un ancien couvent

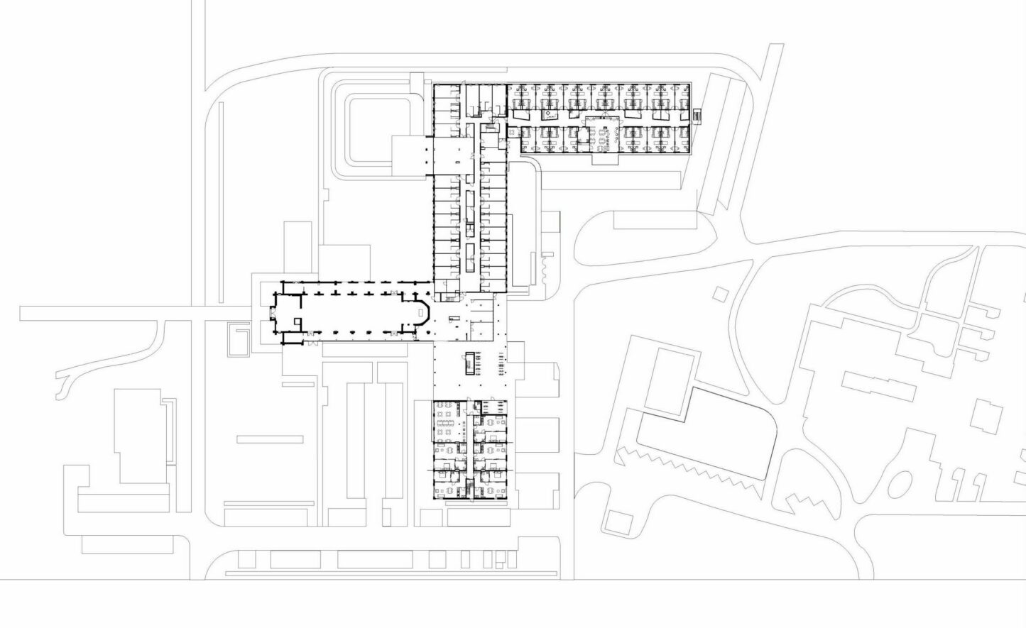
Dans la première phase, l’ancien couvent des sœurs franciscaines le long de la Bredabaan à Gooreind-Wuustwezel a été transformé en un campus de repos et de soins. L’entreprise de construction Ibens a restauré la chapelle existante et construit le nouveau bâtiment selon un projet d’assar architects. Amate est responsable de l’exploitation du nouveau campus, qui a reçu le nom d’Amandina. Ce nom fait référence à une sœur missionnaire décédée en Chine. Néanmoins, la grande chapelle néogothique, qui a été réaffectée en cafétéria/salle polyvalente, est avant tout un rappel du passé.
Les bâtiments conventuels étaient techniquement impropres, du point de vue architectonique et de la protection contre l’incendie, à une rénovation en une MRS. Ils ont donc été démolis. Cependant, la nouvelle façade extérieure rappelle celle de l’ancien couvent. Après que les religieuses franciscaines eurent quitté leur couvent en 2008, elles commencèrent à chercher des candidats pour réaffecter leur domaine par l’intermédiaire de l’ASBL Kempens Landschap.
En collaboration avec Amate, Ibens Bouw en Ontwikkeling a déposé un dossier pour la construction d’une nouvelle MRS et de logements à assistance. Leur projet s’inscrivait parfaitement dans la vision de Kempens Landschap et de la commune de Wuustwezel, qui souhaitent préserver le reste du domaine de 40 hectares en espace vert et l’ouvrir au public. Par ailleurs, la commune de Wuustwezel a autorisé le CPAS à construire sa Maison Sociale. Cela renforce le caractère de soins du campus, où l’ASBL conserve des possibilités d’extension pour les logements à assistance et une crèche.

| program | phase 1 : reconversion du couvent franciscain en maison de repos et de soins, 97 chambres en maison de repos & 20 résidences-services/logements à assistance • phase 2 : extension de la maison de repos & de soins pour 64 chambres & 10 résidences-services |
| client | Amate ASBL |
| address | Bredabaan 737 • 2990 Wuustwezel |
| building type | habiter • soigner |
| status project | en construction |
| expertises | architecturearchitecture d’intérieurbim |
| offices | |
| size | phase 1 : 9.775 m² • phase 2 : 4.210 m² |
| team | • client : Amate ASBL • entrepreneur : Ibens • bureau d’études équipements techniques : SDK |
La MRS Amandina est située le long de la Bredabaan (N1). La longue route traverse le Groene Gooreind et le couvent des soeurs franciscaines s’y niche dans le paysage. Dans ce cadre verdoyant et conformément à la vision de Kempens Landschap, l’accent a été placé sur l’harmonie avec l’environnement bâti et non bâti.
Nonobstant le paysage ouvert, le projet a également relevé le défi de se relier physiquement à la chapelle à rénover. Sur le plan spatial, le bâtiment évite délibérément la confrontation avec la chapelle. Celle-ci doit toujours rester le point central et le plus haut autour duquel s’érige respectueusement le nouveau bâtiment.
D’un point de vue technique, l’architecte s’appuie principalement sur ses expériences de projets urbains. Il le fait pour les détails, comme une liaison sans seuil des niveaux du sol, une excavation minutieuse de la fosse de construction le long de la chapelle et la liaison étanche à l’eau des toits existants et nouveaux.


Pour réduire au maximum l’incidence sur le paysage de la rue, le côté le plus court du nouveau bâtiment a été orienté vers la rue.
La demande initiale était de prévoir une deuxième aile. Celle-ci devait être le plus éloigné possible de la rue afin de se fondre derrière l’aménagement paysager. Dans le même temps, le volume rectangulaire, tout comme l’ancien couvent, délimite également les espaces extérieurs nécessaires. Des fonctions telles qu’une cafétéria et des espaces polyvalents intégrés à l’ancienne chapelle soulignent le caractère hybride du bâtiment.
À l’intérieur, les espaces s’organisent selon une double circulation, les locaux techniques formant une sculpture centrale. Les chambres de repos et de soins sont situées au rez-de-chaussée et au premier et deuxième étage ; les logements à assistance au troisième étage.
Les qualités spatiales de la chapelle ont été pleinement exploitées lors de la rénovation : l’ambiance sereine se reflète dans l’espace de réflexion isolé, tandis que la haute nef offre une vue spectaculaire sur la salle de réunion.

plan d’implantation

L’harmonie avec l’environnement est particulièrement renforcée par les matériaux utilisés. Bien que la MRS soit complètement neuve, quelques clins d’oeil ont été adressés aux éléments historiques de la chapelle, comme les couches de pierre bleue. En général, le nouveau bâtiment est moins orné, principalement pour préserver sa tranquillité. La structure porteuse est en béton préfabriqué.
Les façades de parement sont constituées de briques encollées qui créent les mêmes surfaces de façade lisses et solides. Avec un mélange de deux briques différentes, l’effet patiné est revenu, ce qui se rapproche au mieux de la couleur de la chapelle.
De plus, les matériaux et techniques (d’isolation) contribuent à la durabilité. La chasse d’eau des toilettes se fait avec de l’eau de pluie récupérée. Pour le chauffage, outre le gaz naturel, on utilise de la chaleur géothermique grâce à deux forages de près de 100 mètres de profondeur. Des panneaux solaires thermiques sur le toit sont chargés de chauffer l’eau sanitaire. L’électricité est fournie par le biais du réseau de distribution.


Chaque chambre est équipée d’un lit gigogne électrique avec matelas anti-escarres. Une table, une chaise et un canapé sont prévus, mais vous pouvez également apporter vos propres meubles. Le matériau des sièges soigneusement choisi et les rideaux des salons communs, qui disposent également de cuisines thérapeutiques, apportent une expérience supplémentaire.




assar et Ibens ont de nouveau été mandatés en 2019 pour agrandir le centre, de 64 chambres et 10 logements à assistance.
La nouvelle aile est reliée, en forme de L, au bâtiment existant. Elle encadre le campus à l’arrière et offre aux résidents une vue imprenable sur la réserve naturelle adjacente. Dans le même temps, la chapelle néogothique du couvent reste un point central du paysage.
Les chambres de repos et de soins sont situées sur les trois étages inférieurs, chacune organisée autour d’un espace de vie avec cuisine ouverte. Les logements à assistance au dernier étage forment un ensemble indépendant avec les appartements existants. S’agissant de la forme, de l’agencement et de la palette des couleurs, le nouveau bâtiment s’intègre parfaitement à l’existant. Seule la variation ludique dans l’utilisation des matériaux et le rythme des façades indiquent que ce n’est pas tout. Pour éviter que l’extension ne soit ressentie à l’intérieur comme un bâtiment séparé, l’intérieur du bâtiment existant est également en cours de rafraîchissement. En utilisant le même papier peint et les mêmes couleurs dans l’ancien et le nouveau, on obtient une transition douce.
Grâce à la chapelle rafraîchie, la salle polyvalente répond également aux souhaits évolutifs de la MRS. Dans le cadre de ses ambitions de développement durable, Amate a considérablement étendu à la fois l’installation photovoltaïque et le stockage des eaux pluviales.

want to know more about assar or contribute to its continuous development