comment une composition architecturale hospitalière intégrée à la nature contribue à mieux héberger, soigner & guérir les patients ?
comment une composition architecturale hospitalière intégrée à la nature contribue à mieux héberger, soigner & guérir les patients ?

le CHN (Centre Hospitalier Neurologique) William Lennox bénéficie d’une localisation exceptionnelle dans une forêt classée site Natura 2000.
L’architecture des 2 nouveaux bâtiments doit donc mettre en valeur un double rapport :


| program | rénovation complète du site du CHN & construction de nouvelles extensions |
| client | Centre Hospitalier Neurologique William Lennox |
| address | allée de Clerlande 6 • 1348 Ottignies |
| building type | guérir • soigner |
| status project | en construction |
| expertises | architecturearchitecture d’intérieurbimpaysagismegestion de projetsgestion de la constructioncoordination sécurité & santéprogrammation |
| offices | Bruxelles |
| size | 22.389 m² |
| team | • client : Centre Hospitalier Neurologique William Lennox • bureau d’études structure : Setesco • bureau d’études techiques spéciales : BICE |

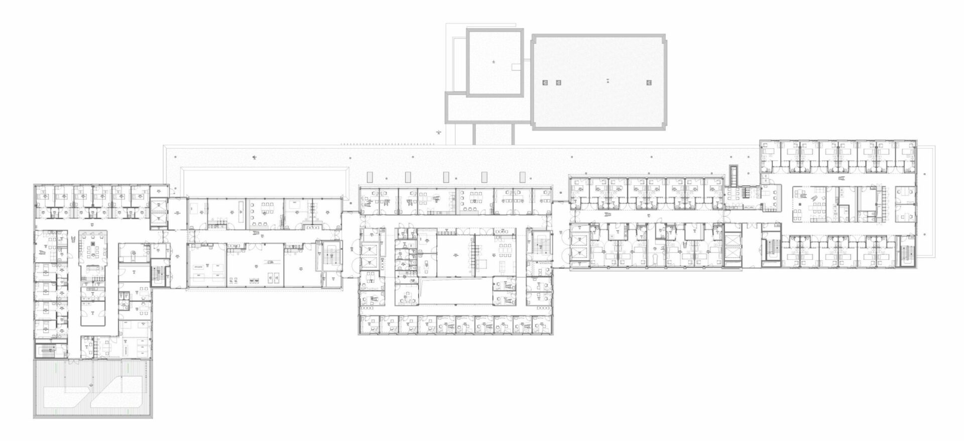
La première extension (rez + 3), accueille les unités d’hospitalisation pédiatrique et celle d’éveil au coma. Elle est tournée à 90° par rapport au principe général d’implantation des bâtiments, et ce afin de ne pas empiéter sur la forêt. Elle présente donc une façade moins large que les volumes actuels et une volumétrie caractérisée par un jeu de terrasses successives pour en diminuer le gabarit.
A l’autre extrémité, la seconde extension regroupe les services d’hospitalisation adulte. Elle respecte totalement la configuration de l’hôpital en s’avançant davantage vers la rue afin de suivre le jeu des décalages.
La partie centrale du bâtiment existant comprend les fonctions les plus ambulatoires d’hospitalisation de jour et d’hydrothérapie.
Le nouveau couloir implanté en façade avant, fait la liaison entre les 2 entrées, l’existante et la nouvelle pour l’hôpital de jour. Il relie également tous les noyaux de circulations verticales pour éviter aux visiteurs de passer à l’intérieur des services qu’ils n’ont pas besoin de traverser.
L’ensemble de ces éléments architecturaux renforce l’effet de perspective. Ils encadrent et valorisent les volumes déjà construits.
L’architecture, image du Ciel et de la Terre, fonctionne en totale symbiose avec les constructions existantes.
Les façades des nouveaux blocs sont une double combinaison. D’une part, celle de la Lumière – à travers le verre et des panneaux blancs – et, d’autre part, celle de la Terre – par l’utilisation d’une teinte métallique imitant l’acier corten.
Le verre assure, par ailleurs, une perméabilité intérieur/extérieur : il reflète le Ciel et la Nature et protège du soleil par des éléments sérigraphiés.
L’acier corten par sa patine et sa couleur constitue la présence solide, enveloppante, bienveillante et chaleureuse de la Terre.


Les aménagements extérieurs sont en harmonie avec les concepts ci-dessus.
Le dégagement de la vue sur l’entrée principale du site théâtralise l’arrivée dans la clairière. Elle met en valeur l’architecture et accentue l’effet de perspective.
La route, déviée face à l’entrée principale, permet de :
Les matériaux utilisés différencient la route principale des autres espaces réservés aux circulations plus lentes ou limitées (dépose-minute, navette, livraisons, ambulances… ) et aux usagers faibles. Les plantations répondent aux besoins de confort et de sécurité. Selon les traces des parcours naturels et instinctifs laissées par les utilisateurs, les cheminements et stationnements ont été réévalués et certains redessinés. Les abords des pavillons sont aménagés pour offrir davantage d’espace thérapeutiques. Les fonctions extérieures d’ergo- et kinésithérapie seront disséminées sur l’entièreté du site pour agrémenter le parcours des patients. Plusieurs lieux de convivialité, zones d’assises et de rencontre, sont également prévus. Des emplacements de parking supplémentaires sont implantés.
Afin de rendre les flux simples, pratiques et immédiatement compréhensibles par tous, ceux-ci-sont canalisés. Les accès existants sont conservés et deux nouvelles entrées secondaires sont prévues aux extrémités du couloir de liaison. Ils faciliteront l’entrée et le passage du personnel d’un bâtiment à l’autre. Une de ces entrées bénéficiera également aux patients se rendant dans les pavillons de soins.
L’ajout de 2 tours de circulations verticales, entre nouveaux blocs et bâtiments existants, augmente l’offre en engins de levage. Outre le désengorgement des installations existantes, cela permet d’en dédicacer certains et de différencier les cheminements et les accès depuis et vers les services.

plan +1
want to know more about assar or contribute to its continuous development