de l'usine de bonbons au bureau d'architecte, un design contemporain dans un contexte industriel & historique

de l'usine de bonbons au bureau d'architecte, un design contemporain dans un contexte industriel & historique

Pendant près de 80 ans, le site a accueilli la Confiserie Roodthooft, surtout connue pour ses Caramella Mokatines ou Arabierkes. Un promoteur immobilier a acheté le site en 2017, mais en raison de la complexité du dossier, le réaménagement n’a pu commencer que deux ans plus tard. Bold architects a été le concepteur principal, en collaboration avec Patine Architects, qui a entrepris la restauration du site – dont une grande partie (notamment la résidence du directeur de l’usine) avait été officiellement labellisée monument depuis 2003. Bold et Patine ont réussi à restaurer le style Art nouveau et l’atmosphère industrielle d’origine, conformément au projet initial. Le site historique de l’usine a été transformé en un centre dynamique comprenant 41 unités résidentielles et cinq unités de bureaux, créant ainsi un développement à usage mixte réparti sur sept bâtiments. Le point d’attraction est l’ancien hall d’usine, où les architectes d’assar ont élu domicile en 2024.


| program | rénovation d'un hall d'usine en bureau d'architecte |
| client | assar architects |
| address | Lange Leemstraat 374A • 2018 Antwerp |
| building type | travailler |
| status project | achevé |
| expertises | architecturearchitecture d’intérieurbimprogrammation |
| offices | Anvers |
| size | 890 m² |
| team | • client : assar architects • entrepreneur : TM Vanhout - Denys • bureau d’études structure : Arcade • bureau d’études fluide : Botec et Thermo-service |

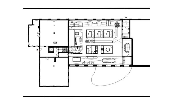
Le hall d’usine se composait d’un volume ouvert d’environ 900 m² et de 8 mètres de haut, avec une façade protégée en briques avec des menuiseries vertes d’un côté (conformes aux plus anciennes couches de peinture retrouvées) et une façade rénovée avec des menuiseries de couleur terre cuite de l’autre côté, correspondant à l’aspect des briques rouges des volumes voisins construits à neuf.
En outre, assar souhaitait refléter certains éléments historiques dans l’intérieur des nouveaux bureaux. Les plafonds en béton ont été conservés, de même qu’une ancienne cage d’escalier, avec ses carreaux muraux authentiques et sa rampe d’escalier ornée de silhouettes sculptées de boutons d’or, qui rappellent que le bâtiment a été construit en 1905 en tant que beurrerie. Le directeur actuel a depuis emménagé dans le bureau de la direction, qui donne sur le hall de l’usine par une grande fenêtre.
Forts de ces principes, les architectes se sont attelés à la conception de leur nouvelle maison anversoise.
Afin d’utiliser au mieux l’espace disponible sans détruire le caractère authentique de l’ancien hall d’usine, une mezzanine allongée en acier a été intégrée. Cette solution tient compte de la demande de l’Agence du patrimoine de créer deux grands vides sur les façades longitudinales, préservant ainsi la grandeur de l’ensemble.
Des poutres en béton de deux mètres de haut créent une structure de toit saisissante qui s’étend sur le hall ouvert, laissant entrer une douce lumière du nord. Cette conception unique du toit a influencé l’agencement du plan d’étage, en utilisant différemment les caractéristiques des zones hautes et basses.
Sous le bâtiment se trouve un nouveau parking souterrain, de sorte que les points où les colonnes de la nouvelle structure en acier pouvaient être placées étaient fixes. Ces points ont été utilisés de manière créative pour créer la symétrie nécessaire entre les deux espaces vides, notamment par l’ajout de « poussoirs » angulaires. En outre, les murs ont été placés non pas sur mais juste à côté de la structure, laissant les colonnes peintes en noir visibles, ce qui a permis d’intégrer l’ensemble de la structure en acier à l’esthétique générale de l’intérieur.
Côté jardin, la façade n’était pas protégée et a bénéficié d’une isolation extérieure et d’une nouvelle brique de parement. De ce côté, où il y avait un mur complètement fermé, des fenêtres d’un mètre de haut ont été installées, donnant sur la cour-jardin commune où le personnel du cabinet d’architecture peut déjeuner ensemble.


Lorsque l’on évoque le terme de durabilité, les panneaux solaires ou les pompes à chaleur viennent rapidement à l’esprit. Il ne fallait évidemment pas les rater, mais la durabilité, c’est bien plus que cela. Durable signifie « produit ou obtenu de manière à avoir le moins d’impact possible sur l’environnement et la nature ». Elle commence donc dès le premier pentagramme du concept de design. L’ensemble du design est conçu de manière flexible, ce qui signifie que la construction de base est solide et permanente pour une durée de vie plus longue, et qu’un design adaptable laisse le moins de cicatrices ou de déchets possible lors du réarrangement ou du changement de fonctions. Cet objectif est atteint, entre autres, en ne posant pas d’électricité et en n’insérant pas de boîtes de sol dans le polybéton. Le sol industriel se prolonge sous toutes les parois légères et peut être converti en une plate-forme ouverte. Les éléments permanents tels que l’ossature en acier et les ouvertures de la façade ont été conçus de manière rectiligne et à des distances fixes afin de permettre toutes les configurations possibles.
Parce qu’assar agit non seulement en tant qu’architecte mais aussi en tant que constructeur, assar a eu pour la première fois un autre aspect durable entre les mains : l’emplacement.
En choisissant un emplacement central, on investisse dans un réseau de transports publics clair et efficace (mobilité durable) et on limite la contribution au trafic automobile et aux embouteillages.
Le fait d’opter pour un quartier résidentiel où l’on vit et travaille ensemble permet également une utilisation plus efficace et plus compacte de l’espace grâce, entre autres, au partage des espaces extérieurs et des places de stationnement.


La structure de la mezzanine est composée de poutres perforées avec un couronnement périphérique, des colonnes et des poussoirs angulaires qui ont permis la création d’un étage intermédiaire maximum en supportant un porte-à-faux de 3,5 mètres. L’acier a été entièrement peint en noir et délibérément surdimensionné pour offrir une résistance au feu suffisante sans peinture Rf. Ce surdimensionnement a d’ailleurs aussi une raison esthétique. Le bâtiment date de 1905, au milieu de la période de l’Art nouveau, qui se caractérisait par un design prononcé des éléments structurels (en acier). Assar architects s’en est inspiré et a cherché à savoir comment l’acier pouvait ajouter de la valeur à l’intérieur. L’acier profilé a donc été surdimensionné de manière à ce que les brides inférieures restent visibles et que les profilés en C aux extrémités bordent l’ensemble du plancher. Un projecteur de sol a été intégré à la base de chaque poutre en I pour mettre littéralement la structure en valeur la nuit.
Même les plus petits détails ont été pris en compte lors de l’intégration des techniques. Pour accueillir les gaines de ventilation sans réduire la hauteur des étages, on a d’abord envisagé des profils de poutre à créneaux. Comme les porte-àfaux exigeaient le maximum des profils en acier, les plaques d’âme devaient conserver autant de masse que possible. C’est pourquoi nous avons opté pour des poutres en I avec des ouvertures stratégiquement positionnées. Pour ce faire, les architectes ont dessiné eux-mêmes l’ensemble du parcours de ventilation en 3D, en déterminant les ouvertures par profilé d’acier. Enfin, l’étendue de l’espace exigeait un débit de ventilation important et échelonné, ce qui se traduisait par de nombreux diffuseurs au plafond. De là est né un détail quasi invisible où les diffuseurs à fente forment un joint d’ombre entre les plafonds blancs et les poutres noires.




axonométrie des canaux de ventilation
L’aménagement de l’espace a été conçu de manière flexible. Au rez-de-chaussée, la structure noire de la mezzanine a été principalement occupée par des bureaux individuels, grâce à une combinaison de parois vitrées (dans le sens longitudinal) et de parois acoustiques rembourrées (dans le sens transversal), afin de créer autant de vues latérales que possible d’une façade à l’autre.
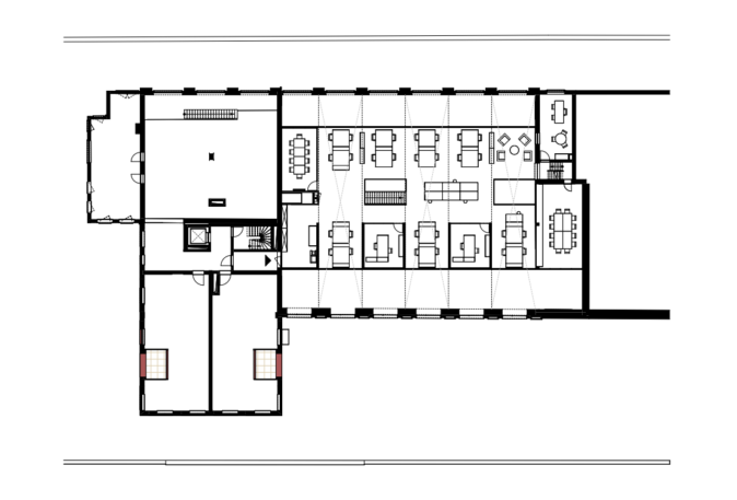
L’étage supérieur abrite un grand espace ouvert avec plusieurs îlots de bureaux, d’où l’on a une belle vue sur les environs et le reste du bureau.
L’aménagement intérieur est greffé au maximum sur l’enveloppe environnante, avec le vert et la terre cuite comme teintes dominantes, auxquelles s’ajoutent des nuances de gris. La couleur verte a été imposée par le patrimoine car c’était la couleur d’origine des menuiseries extérieures en bois le long de la ruelle. La couleur rouge a été choisie par les architectes de Bold pour les fenêtres et les façades des nouvelles parties du bâtiment, afin de faire ressortir les parties patrimoniales.
La palette de couleurs se reflète, entre autres, dans le nouveau sol en polybéton et les murs acoustiques rembourrés (gris), le carrelage du bureau de l’entrée (vert) et le comptoir de la salle à manger (terracotta), ainsi que dans la couleur de la cuisine (terracotta). Un bon équilibre a été recherché, en combinaison avec l’acier noir et les accents de bois chauds.
L’exposition des vieux murs de briques le long de l’allée a créé un sentiment de valeur historique et a ajouté de la couleur et de la texture à l’espace de bureau. Pour réunir le tout, un circuit courbe récurrent a été introduit dans plusieurs éléments fixes tels que le bureau d’accueil, le bar, la table à manger et l’éclairage au néon.
Les postes de travail sont également personnalisés : le nouveau système flexible de Hay New Order offre une variété de petits et grands bureaux, hauts et bas. Les murs rembourrés de Beddeleem offrent des espaces de travail isolés ou fermés au sein d’un paysage ouvert.
En outre, des efforts maximaux ont été déployés en matière de confort et de convivialité afin de créer une atmosphère de travail agréable, l’acoustique étant au centre des préoccupations. Outre les murs transversaux rembourrés, les plafonds en plâtre perforé au-dessus du rez-de-chaussée de la mezzanine, la moquette au niveau du sol et le plâtre pulvérisé gris au sommet du hall y contribuent également. Dans un environnement industriel brut comme celui-ci, la création d’un climat acoustique agréable n’est pas une mince affaire, mais le résultat est excellent.
L’éclairage a été réalisé en collaboration avec Modular Lighting Instruments. Le principal élément qui attire l’attention est le grand néon situé au-dessus de la table à manger, qui est flanqué des immenses fenêtres de la façade rénovée et à travers lesquelles la lumière évolue tout au long de la journée.





axonométrie éclatée


En tant que l’un des plus grands cabinets d’architecture de Belgique, assar se devait de donner l’exemple d’un fonctionnement durable et d’un engagement social. En rénovant une ancienne usine dans le centre-ville, assar contribue à la préservation du patrimoine anversois et à l’amélioration de l’accessibilité par les transports publics.
L’emplacement central permet aux employés d’associer les activités du matin ou du soir aux heures de travail, ce qui réduit la contribution aux heures de pointe et encourage les activités après le travail.
La nouvelle tendance du travail hybride exige un aménagement qui accentue les atouts d’un espace de bureau physique. Le bureau encourage donc l’interaction sociale et la collaboration grâce à sa gamme variée d’espaces de bureau et de mobilier.
La combinaison de logements et de bureaux sur un même terrain permet une utilisation plus efficace de l’espace, notamment en partageant l’utilisation et l’entretien des espaces extérieurs avec les résidents locaux.







plan du rez-de-chaussée plan du 1er étage





want to know more about assar or contribute to its continuous development