un bâtiment évolutif pour l’innovation

un bâtiment évolutif pour l’innovation

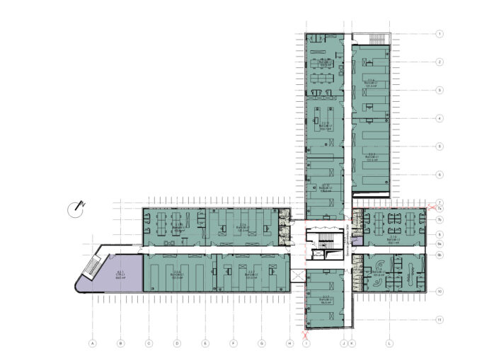
Dans esprit campus à échelle humaine, B17 est le premier laboratoire de biotechnologie d’une emprise foncière destinée à recevoir plusieurs autres bâtiments à court terme. En R+2, il contient 41 modules de laboratoires L1 et L2, des espaces communs et un parking, pour la SEM Genopole et le GIP.
L’entrée orientée sur le cœur d’ilot, se tourne vers un jardin qui sera le « poumon vert » de cette unité foncière sur lequel s’ouvrira tous les halls des bâtiment futurs, lieux de vie, de repos et d’échanges pour tous les usagers du site. L’ensemble des espaces d’accueil et de convivialité sont regroupés au niveau de ce parc-jardin, le bâtiment est organisé avec un sens de circulation et de contrôle allant depuis le hall, vers des espaces plus indépendants, sécurisés et confidentiels.


| program | laboratoire de biotechnologie • bâtiment 17 |
| client | SEM Génopole |
| address | Campus 5 boulevard Coquibus • Evry-Courcouronnes (91) |
| building type | travailler |
| status project | concours |
| expertises | architecturearchitecture d’intérieurpaysagisme |
| offices | paris |
| size | 5.065 m² |
| team | • client : SEM Génopole • architecte : assar architects • ingénieur tce : Edeis |

Le plan en croix permet de structurer toutes les circulations autours d’un escalier central, espace de respiration et de détente commun au plateau d’étage. Conçu sur une trame polyvalente et réversible, les plateaux de laboratoires se superposent et sont interchangeables et adaptables aux différentes activités possibles et changeantes.
L’architecture d’intérieur se réfère aux organisations spatiales en « Flex Offices » et assure un usage multifonctionnel, adapté aux usages d’un public jeune et dynamique, à la pointe de l’innovation, un public de Start up confirmé et exigeant, qui aura la liberté de pratiquer ses activités dans des lieux de vie conviviaux et des lieux de recherche protégé. Les ambiances sont chaleureuses, contrastées et différentes dans chaque unité.
La conception technique de ce bâtiment est en adéquation avec sa fonctionnalité, efficace et séparée. Les organes techniques sont au plus près des besoins tout en ayant des accès totalement indépendants.
L’enveloppe du bâtiment 17 fait son identité, avec un jeu de transparence, de filtre, il apporte à la fois une légèreté, une délicatesse à la façade, il filtre la lumière et permet la confidentialité des espaces de recherches. Il englobe aussi les organes techniques rendant la forme du bâtiment complète, unitaire et insérée, en parfaite adéquation avec son écrin de verdure.


want to know more about assar or contribute to its continuous development