quand l’implantation & la qualité d’une architecture résidentielle
permettent de renouer la ceinture verte d’une commune
quand l’implantation & la qualité d’une architecture résidentielle
permettent de renouer la ceinture verte d’une commune

La Commune d’Auderghem fait partie des communes de la ceinture verte du Sud Est de Bruxelles. Auderghem fût un hameau niché au cœur de la vaste clairière formée par la vallée de la Woluwe dont les habitants vivaient de l’exploitation de la forêt de Soignes.
La présence de la forêt a toujours exercé une véritable attraction pour son calme et était devenue le passage obligé des amateurs d’air pur et de nature.
Suite au tracé de la chaussée de Wavre et plus tard au début du 20ème siècle avec le tracé du Boulevard du Souverain sous Léopold II, les lieux s’urbanisèrent petit à petit. Aujourd’hui, le nouveau projet résidentiel renoue avec cette identité de la ceinture verte et s’inscrit dans le tracé du PPAS en remplacement d’un immeuble de bureaux voisin du centre culturel. Les nouveaux immeubles sont donc véritablement au cœur même de la vie de quartier et en acquiert ainsi toutes ses nombreuses qualités.


| program | démolition d’un immeuble de bureau & construction d’un immeuble de logement comprenant 89 appartements & 2 surfaces commerciales « casco » (banque & cabinet médical) |
| client | Besix Red (Oxygen Development) |
| address | Boulevard du Souverain 191 • 1160 Bruxelles |
| building type | habiter • travailler |
| status project | achevé |
| expertises | architecturearchitecture d’intérieurbimpaysagismeurbanismegestion de projetsgestion de la constructionétudes de faisabilitéprogrammation |
| offices | Bruxelles |
| size | 11.967 m² |
| team | • client : Besix Red (Oxygen Development) • architecte : assar • entreprise : Jacques Delens |

Développé par Besix RED et conçu par assar, le projet résidentiel du 191 boulevard du Souverain dispose d’atouts importants en matière de mobilité avec la proximité immédiate du Métro (Herrmann Debroux), la ligne de tram 94 et de bus 34. Le projet est également directement connecté aux pistes cyclables du Boulevard du Souverain et à la promenade verte.
La position stratégique sur la ceinture de Bruxelles est idéale pour se rendre au centre-ville soit par l’avenue de Tervueren soit par l’avenue Louise. Le ring Est de Bruxelles et l’autoroute E411 vers le Luxembourg sont accessibles en 3’ en voiture. Enfin, la forêt de Soignes située à 700 m est accessible à pied en 10’.



Les habitants du bâtiment Oxygen ont toutes les facilités à proximité immédiate à pied ou à vélo :
L’immeuble Oxygen s’inscrit dans le mode de vie actuel d’un habitat qui combine les atouts de la ville avec la proximité de la nature.



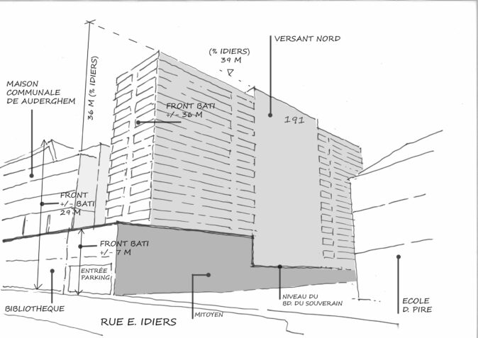
L’ancien immeuble de bureaux était un immeuble à l’image de ceux des années 60. Il s’inscrivait dans un rectangle et répétait un plan identique sur tous les 11 niveaux. Il en résultait un immeuble barre avec une expression rigide et une hauteur disproportionnée côté rue Idiers. Après démolition de celui-ci, les nouveaux gabarits sculptent la volumétrie de manière à être adaptée au contexte très différent des deux rues. Ils sont constitués de deux immeubles mitoyens. Ainsi sur la rue Idiers, l’immeuble comporte un rez-de-chaussée + 5 niveaux de même hauteur que la Maison Communale et forme un socle surmonté de deux étages en retraits.
Sur le boulevard du Souverain, l’immeuble comprend le même socle avec un rez-de-chaussée commercial surmonté de 4 étages avec un penthouse en guise
de couronnement. Les hauteurs s’inscrivent dans celles de l’immeuble existant. L’effet de socle induit une double lecture des gabarits.
La base répond à la moyenne des immeubles voisins et est surmontée d’une émergence coté boulevard, de sorte que, le bâtiment devient le signal du lieu dans la perspective urbaine du boulevard.
Le volume central d’articulation se limite au R+5 pour créer une percée significative au profit de l’ensoleillement et offre des échappées visuelles pour les étages en retrait. Les volumes en partie R+5 se lisent comme un ensemble à dominante horizontale en relation avec le contexte bâti voisin. Les étages supérieurs en retrait sont conçus en 4 façades pour favoriser l’ensoleillement de l’ensemble des appartements.
Tous les appartements sont organisés avec des terrasses majoritairement bien orientées.
L’architecture propose une composition dynamique de l’ensemble avec une riche variété de configurations qui ne tombent jamais dans une répétition systématique.
L’objectif est de personnaliser chaque appartement avec sa propre disposition de terrasse, son orientation et sa vue en tenant compte de l’ensoleillement.
Les matériaux de façade utilisés dans le socle sont de la pierre naturelle (gris basalt flammé) rehaussée de cadres en béton architectonique blanc. L’émergence ou les étages en retraits sont en enduit blanc sur isolant.
Au final, l’immeuble propose une Skyline bien découpée et dynamique avec des appartements essentiellement situés sur des angles bien orientés.


Un programme varié avec une grande diversité de typologie d’appartements. Les deux immeubles rassemblent 89 appartements dont :

L’immeuble est passif 2015 c’est-à-dire que les consommations sont réduites. L’immeuble dispose de panneaux voltaïques, de récupération d’eau de pluie et d’un bassin d’orage. Les toitures sont végétalisées.
Le chauffage est réalisé par un chauffage central (chaudières en toiture) avec boucle eC-eF. La ventilation est assurée par des doubles flux individuels.


croquis d’esquisse croquis d’esquisse


want to know more about assar or contribute to its continuous development