comment un immeuble « campus » de 12 niveaux offre une accessibilité multiple à des espaces de travail durables organisés en terrasses

comment un immeuble « campus » de 12 niveaux offre une accessibilité multiple à des espaces de travail durables organisés en terrasses

Il faudra encore attendre un peu, mais c’est probablement au début de l’année 2022 que le cabinet international de conseil comptable et fiscal PwC déménagera dans un tout nouveau siège social au sein d’un complexe développé par Ghelamco. Destination : la Cullinganlaan à Diegem, à côté de l’hotel Van Der Valk et à proximité immédiate de l’aéroport de Bruxelles. PwC Campus, comme on appelle déjà le bâtiment, abritera quelque 30.000 m² d’espace de travail, 11 étages et une multitude de terrasses vertes.


| program | nouvel immeuble de bureaux |
| client | Ghelamco Invest nv |
| address | Culliganlaan 5 • 1831 Diegem |
| building type | travailler |
| status project | achevé |
| expertises | architecturebimprogrammation |
| offices | |
| size | 51.786 m² |
| team | • client : Ghelamco Invest nv • entreprises générales : Aertssen & Verheyden + Soiltech • ingénieur structure : BM Engineering • ingénieur techniques spéciales : BM Engineering • paysage : Urban Landscape • géomètre : Teugels • BREEAM : Encon • acoustique : Scala • contrôle : Seco • coordinateur sécurité & santé : 2B-Safe |

« Le gros oeuvre est en cours à un rythme accéléré » , déclare le designer Dieter Wuyts d’assar architects qui a conçu l’architecture. « L’intention est de réaliser ici l’immeuble de bureaux du futur. Un environnement de travail dynamique où l’interaction entre les personnes est maximisée tout en gardant un oeil attentif sur leur confort et bien-être. »
La mobilité joue un rôle de plus en plus important pour de nombreuses entreprises lors du choix d’un emplacement. Dans le cas de PwC, l’accessibilité était aussi une motivation importante. Le site est situé au bout de la Cullinganlaan, une impasse parallèle à l’A201. Il y a un accès immédiat sur le périphérique de Bruxelles, la gare de Diegem est accessible à pied et, en 2022 le tram de l’aéroport s’y arrêtera devant la porte. De plus, une autoroute cyclable adjacente au site est en cours de réalisation.
« L’emplacement du site à proximité de l’aéroport est un choix délibéré » , explique Dieter Wuyts. « Au préalable, PwC a mené une enquête auprès de ses propres employés. Elle a démontré que les gens préféraient ne pas travailler dans le centre de Bruxelles, en raison des problèmes de mobilité importants.
La conception devait donc être parfaitement adaptée au modèle de distribution diffuse du trafic. Le site disposera par exemple de sept cents parkings, accessibles via un plan de circulation bien pensé et assurant une liaison efficace avec le ring de Bruxelles. Diverses boucles organisent l’entrée et la sortie des voitures. Une boucle passe par exemple devant un park & ride, tandis qu’une autre fait le tour du bâtiment en direction d’un parking souterrain qui couvre quatre niveaux. En plus, nous avons veillé à ce que le parking soit directement relié à l’autoroute cyclable. »


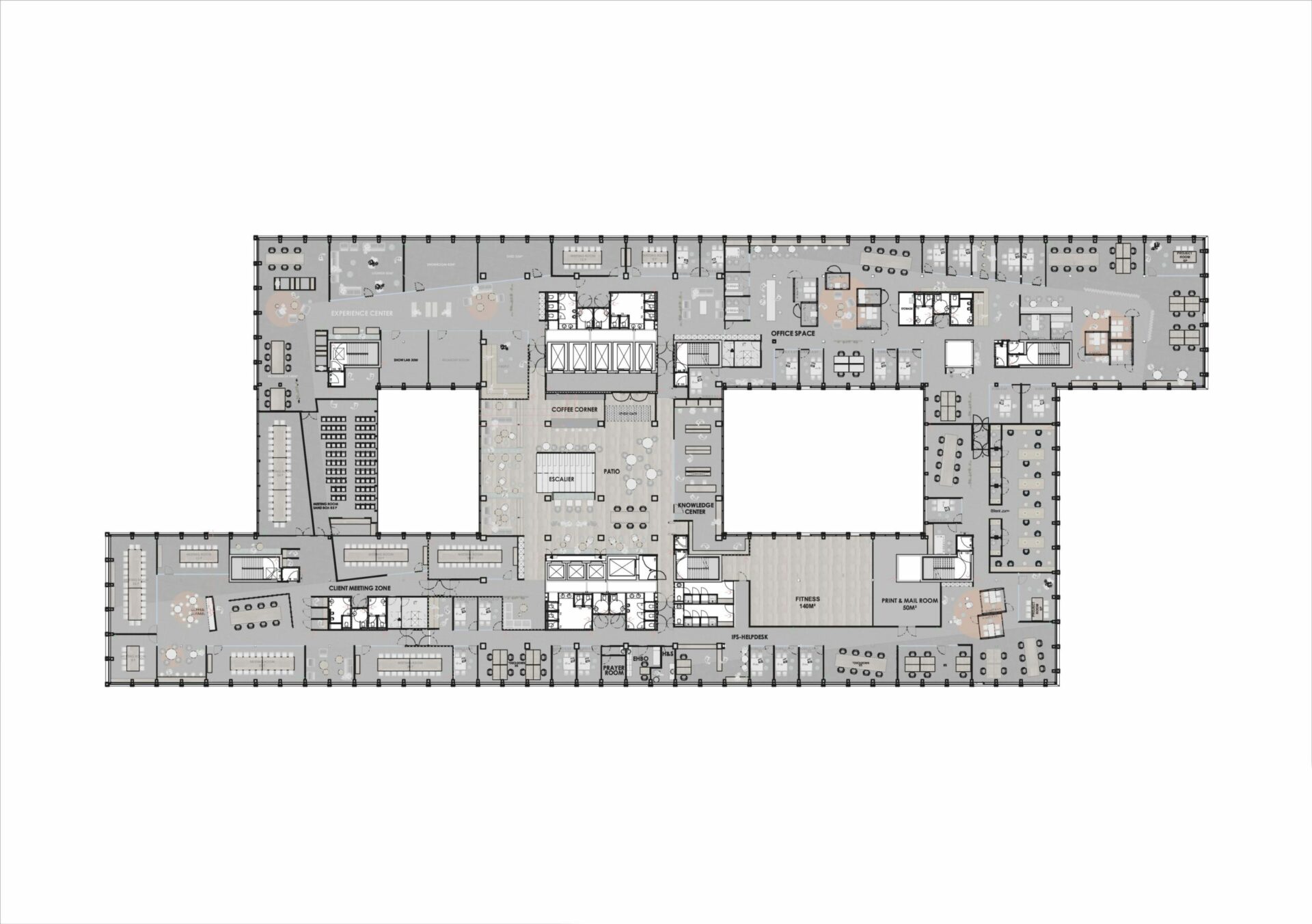
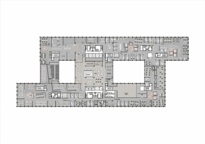
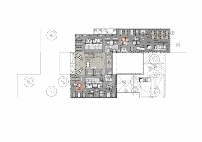
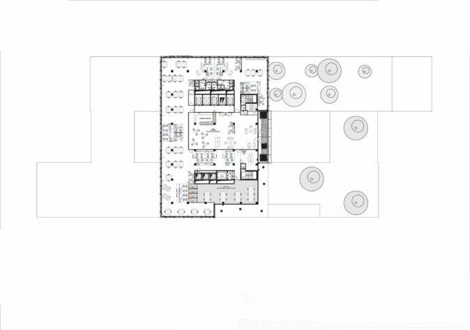
Des matériaux durables sont utilisés pour la construction afin de réduire l’empreinte écologique de l’entreprise : béton, verre et aluminium. Le bâtiment ressemble à une pile de figures rectangulaires qui sont glissées, les unes à côté des autres et les unes sur les autres en forme de gradins.
Fondamentalement, il se compose de trois parties. Deux volumes en forme de poutre, reliés par des ponts de verre qui créent deux patios. Une partie plus profonde qui se compose exclusivement de verre. Et une tour avec terrasses encastrées et continues, où se trouvent les bureaux.

« La volumétrie du bâtiment donne une réponse aux différentes restrictions présentes » , explique Dieter Wuyts. « La hauteur, par exemple, est déterminée en fonction des pistes de l’aéroport. L’achèvement à l’avant, à son tour, respecte la vue du skybox de l’hotel Van Der Valk. Le jeu des volumes permet également de créer de l’espace pour de grands espaces extérieurs.
Il y a des terrasses vertes à tous les niveaux qui compensent le manque de verdure sur le site et créent un écosystème interne. Après tout, le bâtiment et la route occupent presque toute la surface constructible du site. En plus, la parcelle s’incline lentement, c’est pourquoi la différence de hauteur entre l’avant et l’arrière est d’environ dix mètres. »
En tout, le campus a une surface utilisable de plus de 30.000 m² hors sol et un peu moins de 22.000 m² en sous-sol. 4.000 m² de terrasses ont également été intégrés.
Bien que l’entrée soit clairement indiquée à l’avant du site, le bâtiment n’a pas dans l’absolu une façade avant ou arrière. Outre une mobilité optimisée, une grande visibilité était une exigence cruciale. Le complexe devait exprimer la même force quel que soit le point d’approche, d’où le caractère l’architecture très articulée dans toutes les façades. C’est un volume en barre qui s’accroît systématiquement et semble être en mouvement à mesure qu’il prend de la hauteur. Dès le quatrième étage, nous avons commencé à jouer plus fortement avec les terrasses. Plus on monte, plus le bâtiment devient compact. Finalement, un petit morceau de la tour jaillit au dernier étage, flanqué d’une gigantesque terrasse verte.

En tant que résident principal, PwC dispose de plus de 22.000 m², tandis que les 7.700 m² restants sont occupés par MeetDistrict, un espace de coworking innovant mis en place par Ghelamco en tant que village professionnel.
Dieter Wuyts : « L’intention était de réaliser un immeuble de bureaux durable, tourné vers l’avenir. Outre la mobilité, la qualité du lieu de travail était au centre des préoccupations. Notre mode de vie évolue constamment, y compris la façon dont les collègues et les clients travaillent ensemble. L’exploitation du bâtiment favorise une atmosphère animée et interactive qui exprime l’ambition et le sens de l’innovation au sein de PwC. Les espaces flexibles sont regroupés autour d’une grande variété de commodités.
Nous avons travaillé à maximaliser l’expérience, le vécu. Les vues y jouent un rôle majeur, tout comme les espaces verts extérieurs. Il y a beaucoup de verre pour apporter le plus de lumière possible. Tout le monde peut sortir à tout moment, tandis que différentes zones ont été adaptées aux différentes façons de travailler. Le bâtiment devait offrir bien plus qu’un immeuble de bureau classique. »
plan d’implantation

niveau 1

niveau 3 niveau 5


niveau 7 niveau 10


coupe longitudinale

façade ouest

want to know more about assar or contribute to its continuous development