construction à neuf d’une extension (32 chambres & 5 appartements-services), travaux de transformation de la MRS (57 chambres) & rénovation du Grand Café, entrée & bureaux

construction à neuf d’une extension (32 chambres & 5 appartements-services), travaux de transformation de la MRS (57 chambres) & rénovation du Grand Café, entrée & bureaux

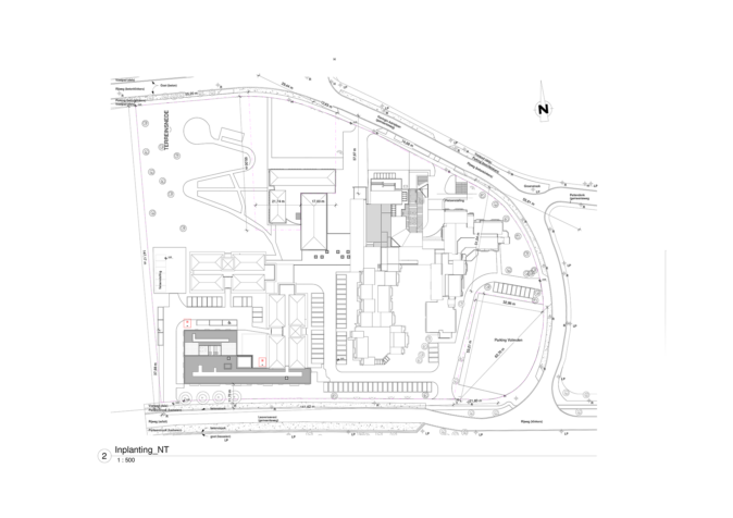
La maison de repos et de soins Sint-Jozef à Lier est un campus de soins urbain, un foyer confortable, avec des soins de qualité, au sein duquel le résident est la priorité.
L’extension à neuf est conçue pour 32 résidents présentant un handicap cognitif, dans la vision d’une vie normalisée à petite échelle. La section se compose de deux groupes de vie de 16 résidents, répartis sur deux étages. Le groupe de vie comporte deux maisons de 8 résidents chacune. Entre ces deux maisons, se trouve un grand espace commun avec un coin salon cloisonnable, une cuisine et un coin repas. Le deuxième étage compte 5 appartements-services.
Un patio a été intégré dans le bâtiment compact. Il apporte lumière et vue dans le bâtiment. Il donne aux résidents un sentiment d’orientation et crée une connexion visuelle entre les deux niveaux.


| program | construction à neuf d’une extension (32 chambres & 5 appartements-services), travaux de transformation de la MRS (57 chambres) & rénovation du Grand Café, entrée & bureaux |
| client | De Medemens |
| address | Koningin Astridlaan 4 • 2500 Lier, Belgium |
| building type | habiter • soigner |
| status project | achevé |
| expertises | architecturearchitecture d’intérieurbimpaysagismegestion de projets |
| size | 5.200 m² |
| team | • client : Amate ASBL • entrepreneur : Alibo • bureau d’études stabilité : Fraeye & Partners • bureau d’études équipements techniques : Botec • coordination de la sécurité : Bovex • PEB : Vicave |

Le bâtiment a été conçu pour une vie normalisée à petite échelle. La section se compose de 2 groupes de vie. Chaque groupe d’habitation de 16 résidents est situé sur un seul niveau. Un groupe de vie se compose de deux « maisons » de 8 résidents chacune. Entre deux maisons, un grand espace commun peut être librement divisé. Il permet de créer plusieurs coins salons, cloisonnés ou non, une cuisine et un coin repas. Une attention particulière a également été portée à la connexion entre les deux niveaux. À la fois physiquement, avec des escaliers et des ascenseurs, et visuellement, avec un espace ouvert/patio.




Le bâtiment a été conçu pour être le plus compact possible. Un patio a été intégré dans la partie bâtie avec grande profondeur. Il apporte de l’air et de la lumière dans le bâtiment. Il donne aux résidents un sentiment d’orientation et crée une connexion visuelle entre les deux niveaux.

Une brique rouge a été choisie pour la finition de la façade. Elle s’inscrit parfaitement dans cet environnement urbain. Cette brique de parement se marie avec des éléments saillants en béton qui encadrent les fenêtres et créent des terrasses. L’utilisation de béton apparent se retrouve également dans le patio. Les toits plats et libres sont conçus comme des toits végétalisés.

Nous visons l’implantation la plus naturelle possible du bâtiment dans son environnement.




Le concept se compose de deux parties distinctes : le jardin avant et la cour cloisonnée pour les personnes âgées atteintes de démence. Le jardin avant est assez limité en largeur. C’est un choix volontaire d’opter principalement pour du gazon et quelques arbres, car le bâtiment avec les fenêtres en saillie donne déjà un effet assez plastique. Cependant, il fallait trouver une solution pour apporter davantage de valeur d’agrément et d’intimité pour les résidents. Deux éléments de la façade ont donc été intégrés à la conception, sans que le jardin et le bâtiment soient toutefois un reflet l’un de l’autre. Cet espace limité appelait plus de dynamisme.
Les éléments repris du bâtiment consistent en la largeur des porte-à-faux des fenêtres. Des cadres carrés plantés sont ainsi réalisés dans le sol, également bordés de béton blanc, comme c’est aussi le cas dans le bâtiment. Le dynamisme naît, d’une part, des changements constants de direction des cadres et, d’autre part, de la prolongation de ce mouvement dans la partie la plus étroite du jardin. Cependant, la figure revêt aussi une signification plus profonde. La forme fixe des cadres représente l’environnement stable dans lequel les soins sont prodigués et le haut niveau de qualité constant. D’autre part, le mouvement symbolise la recherche de formes de soins toujours nouvelles et la dynamique du secteur, le fait de ne pas se reposer sur ses lauriers.



Le jardin intérieur n’occupe qu’une surface limitée, mais c’est un cas intéressant pour indiquer le niveau de détail de notre vision du projet. L’objectif est de faire appel à tous les sens, dans ce petit espace, afin de stimuler les résidents.
En outre, d’autres éléments ont été intégrés au jardin. Un objet qui évoque des souvenirs, une table de culture, des sièges, un garde-corps pour des exercices de physiothérapie et l’utilisation de plantes spécifiques qui attirent les animaux (p. ex. la plante à papillons) accroissent la valeur d’utilisateur et d’expérience.


Pour les résidents spécifiques, il est important de concevoir un bâtiment accueillant, reconnaissable et accessible aux fauteuils roulants. Cela se reflète à la fois dans le design et la finition. Une grande attention a été accordée à la lumière et aux vues ainsi qu’à des matériaux de finition “doux”, qui dégagent de la chaleur, tels que la structure en bois pour le sol et le papier peint décoratif. La même ambiance se répète dans la salle de bains, par l’utilisation de carrelages muraux et de sol de grand format. Y est placée, une armoire à miroir fixe intégrée qui répond aux exigences d’accessibilité en fauteuil roulant.
Avec ses petits coins salons et ses groupes de vie restreints, le bâtiment est à taille humaine, ce qui évite le sentiment de se trouver dans une “institution”. Inspirées du principe de la convivialité, les chambres sont aussi spacieuses que lumineuses. L’architecture permet une circulation contrôlée des résidents, tant à l’intérieur, autour du patio central, qu’à l’extérieur, dans le jardin d’expérimentation.
De surcroît, un mur d’accent dans un papier peint décoratif est présent. Les autres murs sont finis dans une couleur claire neutre afin que le résident jouisse d’une grande liberté pour décorer la chambre à son goût. Les armoires intégrées sont également de couleur neutre.
La conception répond aussi aux principes suivants :
concept des couloirs :
concept de chambre type :



En plus de ce nouveau bâtiment, une partie des bâtiments existants a également été rénovée, à savoir le grand café ainsi que la réception et ses locaux administratifs. Le principe consistait à optimiser l’utilisation de l’espace et d’adapter le « look and feel » aux préférences modernes ainsi qu’aux autres campus de l’ASBL Amate afin d’assurer une cohérence. Le style maison Amate parcourt donc tout le bâtiment. Le choix s’est ainsi porté sur une structure en bois clair qui traverse le bâtiment. Dans les espaces réservés aux résidents et/ou au personnel, ce bois clair est associé à des couleurs d’accent gaies qui alternent pour faciliter l’orientation dans l’ensemble du bâtiment. La zone d’entrée adhère également à cette philosophie.
L’entrée prend clairement la forme d’un auvent ouvert sur l’extérieur. On entre dans la maison de retraite et de soins par un sas vitré avec accès direct à la réception, d’une part, et au grand café, d’autre part. Le comptoir de la réception est très ouvert. Derrière lui, se trouve le back-office, plus fermé, ainsi que les autres locaux administratifs. Un couloir central interne a été prévu pour le personnel, de même qu’un couloir public à l’arrière pour accéder à l’une des ailes du campus.



Tous les bureaux sont baignés au maximum de lumière naturelle à travers un mur de verre. Dans les zones qui sont également destinées à recevoir des personnes extérieures, le bois clair Amate est combiné avec des accents noirs et gris. Cela donne une touche moderne aux espaces, ce qui les rend attrayants aussi pour les extérieurs et les riverains qui souhaitent y passer du temps.
C’était très important pour le grand café, car c’est le cœur du campus de soins Sint-Jozef. C’est un endroit très fréquenté, où se retrouvent non seulement les résidents, mais aussi les habitants du quartier, pour manger, boire, assister à un spectacle, jouer à des jeux de société et bien d’autres choses encore. Cet espace a été ouvert autant que possible pour bénéficier au maximum de la lumière du jour. La terrasse a été élargie vers l’entrée principale afin de profiter pleinement de l’extérieur en été. De petits coins salons confortables ont été aménagés ; chacun peut y trouver sa place préférée en combinant différentes façons de s’asseoir. Des représentations peuvent être organisées grâce à l’espace disponible pour installer une scène et une sonorisation adaptée. Pour les matériaux, on a utilisé la structure en bois clair Amate et des accents noirs. Un plafond en feutre assure une bonne acoustique. Les accents bleu pétrole égayent la salle et rappellent subtilement la couleur bleue du logo Amate.




want to know more about assar or contribute to its continuous development