comment une arche végétale exprime un savoir-faire « made in Belgium » pour mieux construire le futur à Dubaï ?

comment une arche végétale exprime un savoir-faire « made in Belgium » pour mieux construire le futur à Dubaï ?

Comme le dit le philosophe Gilles Deleuze, « Croire au Monde, c’est ce qui nous manque le plus. Nous avons tout à fait perdu le Monde. On nous en a dépossédés. »
Effectivement, la jeunesse d’aujourd’hui est prise en étau, entre d’une part le déni des derniers climato-sceptiques, et d’autre part le cri d’alarme des collapsologues qui nous annoncent le probable effondrement de notre civilisation incapable de se réinventer rapidement face aux défis du dérèglement climatique.
Le thème de l’Expo 2020 Dubaï qui a ouvert ses portes le 1er octobre 2021 est « Connecting Minds, Creating the Future ». A travers ce leitmotiv, les agences associées « Vincent Callebaut Architectures » et « assar » ont voulu unir leur expertise respective pour proclamer haut et fort à la jeunesse que les architectes sont désormais capables de co-construire avec les citoyens des villes écologiques, inclusives et solidaires.
Le pavillon belge est baptisé « The Green Arch », il allie végétalisation et design futuriste en bois massif. C’est un pavillon qui se veut exemplaire en termes de développement durable. C’est une ode à l’économie circulaire régénérative, aux matériaux biosourcés et géosourcés, à l’intégration des règles de bioclimatisme et des énergies renouvelables, ainsi qu’à la préservation de la biodiversité et de la nature.


| program | construction du pavillon belge pour l’Expo universelle de Dubaï pavillon végétal axé smart building |
| client | BelExpo . Régie des Bâtiments |
| address | C77, Mobility District • Expo 2020, Dubai |
| building type | se divertir |
| status project | achevé |
| expertises | architecturearchitecture d’intérieurbim |
| offices | Bruxelles |
| size | 3.500 m² |
| team | • client : BelExpo + Régie des Bâtiments • en collaboration avec Vincent Callebaut Architectures • constructeur : Besix & Besix 3D • scénographes : Facts & Fiction + Envie • F&B : Créneau International • bureau d’études structure : Ney & Partners + RBG • bureau d’études fluide : MK Engineering + Jain • paysagiste : Citiscape |

Situé dans le « Mobility District », le concept architectural du pavillon belge est d’offrir aux visiteurs la plus grande agora ombragée et naturellement ventilée dans l’axe des vents dominants Ouest-Est de la ville de Dubaï. La programmation se retrouve ainsi surélevée en étages pour libérer un maximum de surface au sol.
« The Green Arch » prend dès lors la forme d’un « bâtiment-pont » créant une immense voûte à double courbure entre ses deux piliers. Cette voûte tout en courbes est générée à partir d’une surface minimale mathématique universelle baptisée « paraboloïde hyperbolique ». Ce paraboloïde est construit en bois massif entrecroisé (CLT – Cross Laminated Timber) avec plus de 5,5 kilomètres linéaires de louvres en épicéa générant un moucharabieh géant qui enveloppe l’ensemble du projet pour mieux le protéger des rayonnements solaires.

L’agora a été pensée comme un trait d’union, un « shortcut », reliant directement le Mobility District et le « Sustainability District » en traversant le pavillon. Le mobilier urbain des espaces publics au rez-de-chaussée a été réalisé en béton blanc imprimé en 3D.
Outre les incontournables marchands de frites, de gaufres, de chocolat et le restaurant bistronomique, le pavillon propose de découvrir le paysage belge de 2050 sous le slogan « 2050 Smart & Green Belgium ». Dès l’espace de rencontre sous l’arche, de grandes personnalités belges croquées en mode bande dessinée annoncent le fil d’Ariane de la scénographie pédagogique imaginée par nos partenaires Facts & Fiction.
La scénographie se décompose en 4 temps forts : premièrement, l’escalator futuriste, pensé comme un tunnel spatio-temporel, propulse les visiteurs vers l’odyssée 2050 ; deuxièmement, le « Future Mobilty Lab » permet aux trois régions (Bruxelles, Flandre, Wallonie) d’exposer – toujours avec les héros de la bande dessinée belge – les moyens qu’ils mettent en œuvre pour transiter vers une mobilité douce et bas-carbone à l’échelle nationale ; troisièmement, le « Main Show » offre une expérience de vidéo-projection immersive qui dresse une skyline de la Belgique durable et résiliente de 2050 ; et enfin quatrièmement, le « Belgium Mobility Hub » invite chacun, petits et grands, à travers des captations dynamiques inédites, à se projeter dans les villes et les architectures écologiques belges de demain.


A la sortie de l’exposition, les visiteurs sont invités à déguster les spécialités belges dans le restaurant bistronomique « BeHappy » ou sur le rooftop panoramique offrant des vues époustouflantes vers le dôme principal « Al Wasl » à l’Est ou vers le pavillon thématique du « Mobility District » à l’Ouest.
Le Business Center « BeBizz » et son VIP Lounge offrent également une haute flexibilité d’aménagements pour accueillir des entretiens d’affaires et des dialogues internationaux, pour connecter les esprits et créer le futur désirable.
Symboliquement, ce bâtiment-pont élancé représente le dynamisme et la singularité plurielle de la Belgique fédérale et de ses Régions.
C’est un monolithe dynamique dédié aux énergies renouvelables, recouvert d’une large canopée solaire photovoltaïque et thermique, produisant électricité et eau chaude sanitaire pour l’autoconsommation du pavillon.


C’est aussi une architecture biophilique qui accueille une programmation riche dont les balcons et le rooftop sont plantés d’une végétalisation intensive de plus 2500 plantes, arbustes et arbres. Ces façades « respirantes » arrosées au goutte-à-goutte rafraichissent naturellement, par évapotranspiration des plantes, les larges terrasses extérieures où il fait bon se divertir.
« The Green Arch » exprime parfaitement le concept de « Belgitude », cette aptitude typiquement belge à synthétiser au cœur de l’Europe l’esprit romantique latin très créatif avec l’ingéniosité pragmatique des germaniques et des anglo-saxons.


La construction est le fruit d’un partenariat public-privé, avec le commissaire général BelExpo, la Régie des Bâtiments et l’entreprise de construction Besix comme partenaires. Au total, 93 entreprises ont participé au projet dont 46 se sont investies dans le sponsoring du pavillon conçu sur les principes de l’économie circulaire comme un méccano géant. « Le bâtiment ne sera pas voué à la destruction », a indiqué Pierre-Yves Dermagne le ministre fédéral belge de l’Economie. “Tout a été fait pour qu’il puisse être reconstruit, je l’espère, en Belgique.”
« Une exposition universelle est toujours un moment particulier, surtout pour un petit pays, car il peut y concourir sur un pied d’égalité avec les grands », a-t-il observé lors de la conférence de presse qui s’est déroulée à l’Atomium à Bruxelles le jeudi 23 septembre 2021.
L’intelligence d’un pays est d’abord et avant tout celle de ses citoyens. Nous tenons à remercier chaleureusement toutes nos équipes qui ont fait de ce rêve une réalité.
Vincent Callebaut Architectures + assar

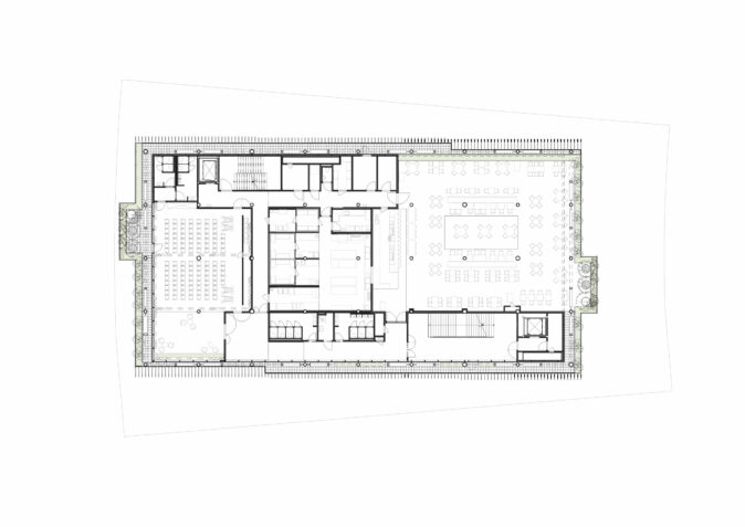
plan du rez-de-chaussée

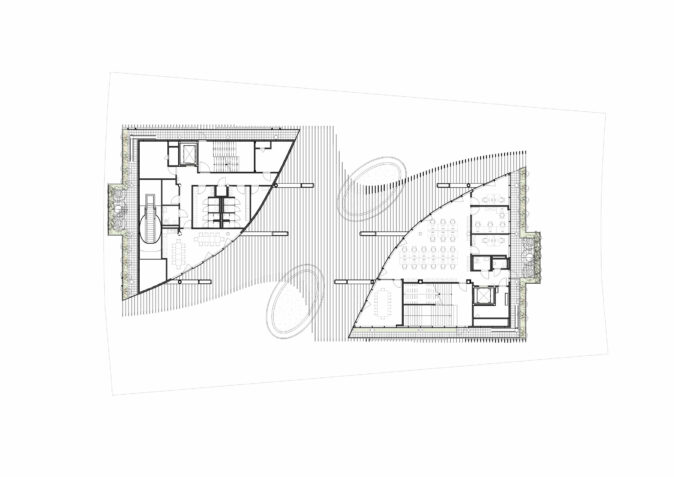
1er étage 2ème étage


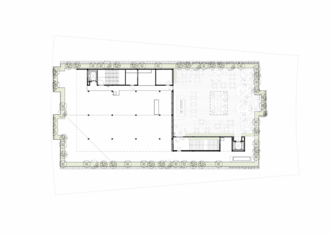
3ème étage rooftop


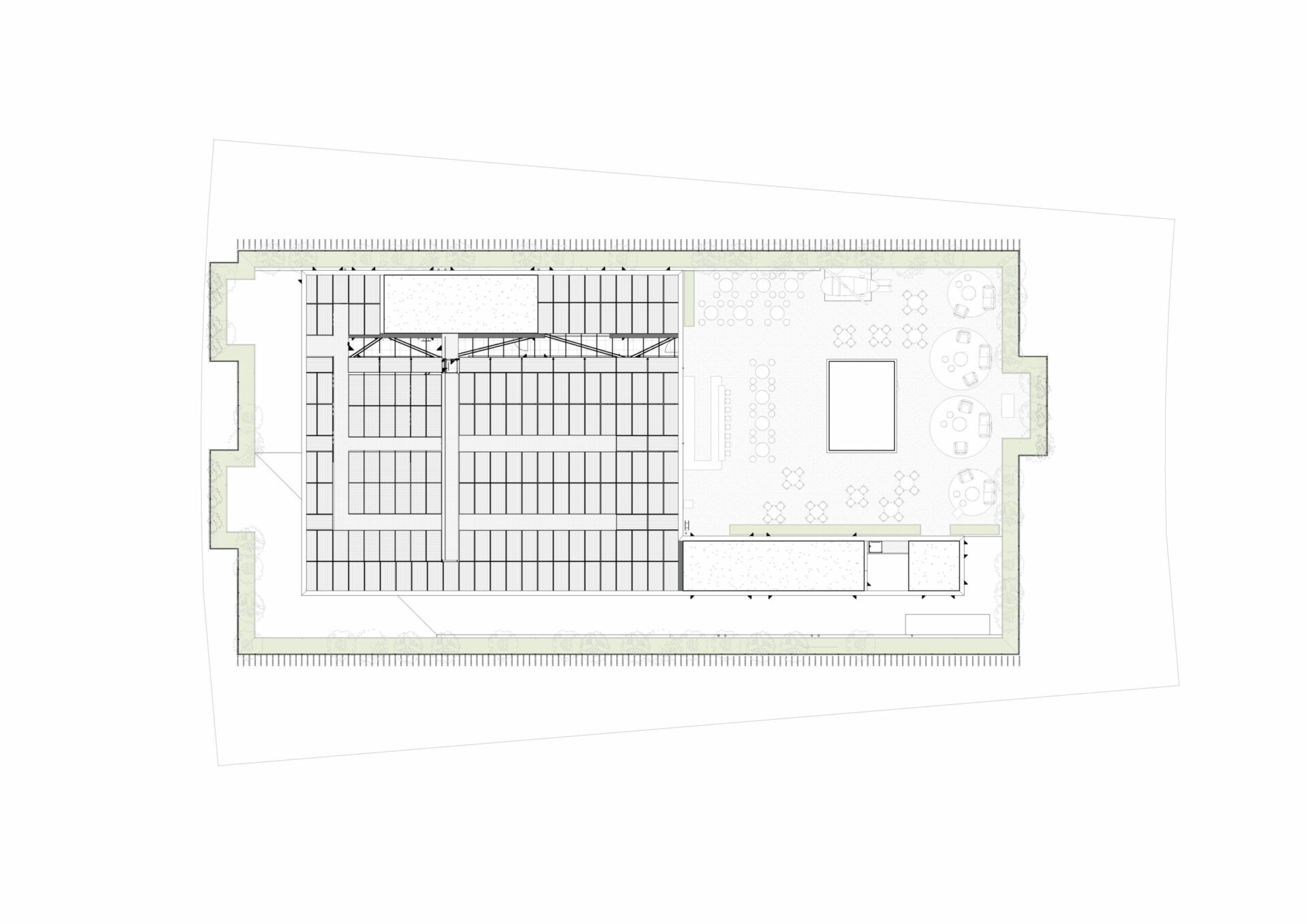
plan de la voilure solaire


want to know more about assar or contribute to its continuous development