quand deux tours sœurs associent transparence, intégration urbaine & aménagement flexible dans un seul geste architectural
quand deux tours sœurs associent transparence, intégration urbaine & aménagement flexible dans un seul geste architectural

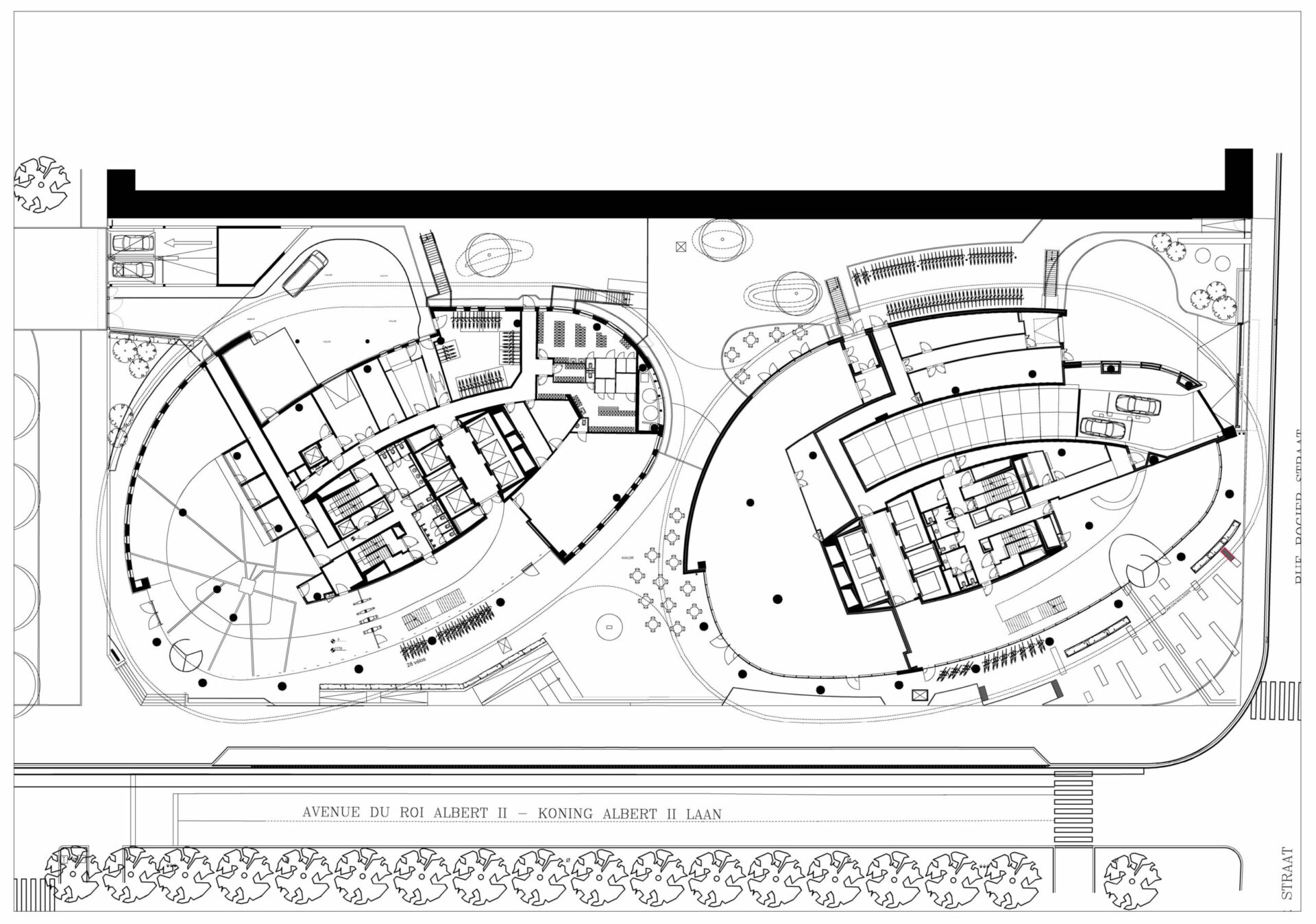
Situé le long de l’axe principal du Quartier Nord à Bruxelles, à quelques pas de la gare, ce projet veut rompre avec la massivité générale des bâtiments et la politique de socle abritant les services les moins nobles des immeubles. Dans cette optique, ce sont deux tours, sœurs et non jumelles, qui développent environ 62.000 m² sur le site.


| program | conception & construction de 2 tours soeurs |
| client | Immobel - Allfin |
| address | boulevard du Roi Albert II • Bruxelles |
| building type | travailler |
| status project | achevé |
| expertises | architecturearchitecture d’intérieurbimpaysagismegestion de projetsétudes de faisabilitéprogrammation |
| offices | Bruxelles |
| size | 61.882 m² |
| team | client : Immobel + Allfin occupant : Allianz ingénieurs : VK group façades : Kyotec |



Leurs rez-de-chaussée et premiers étages accueillent, tout en transparence et en lien direct avec l’espace public, les entrées, le foyer d’une salle de conférence, un commerce, les cafétérias et les salons. Les piétons longeant ces façades sont abrités des courants d’air par un auvent, ample et souple, intégrants les deux tours dans un seul geste urbain.
Le projet englobe également les terrains publics adjacents pour leur offrir un nouvel aménagement, proposant ainsi des espaces verts avec des accents aquatiques et augmentant ainsi la qualité générale de la zone.


Le haut des deux tours offre aux regards des effets sculpturaux qui abritent des salles de réunions de prestige et masquent les installations techniques. Ces effets jouent aussi les perturbateurs de perceptions : la tour la moins haute (4 étages en moins) paraît aussi haute que sa grande sœur.
Avec la volonté de respecter les objectifs de durabilité, les façades se particularisent suivant les orientations : des éléments fixes, différents par chaque orientation, offrent aux occupants des conditions de confort optimal sans d’importantes consommations énergétiques. Ces éléments fixes animent les tours, en découpant leur volume principal en sous-ensembles : leurs proportions n’en sont que plus élégantes encore.
Ce découpage volumétrique a permis également de concevoir, tout en respectant les normes « incendie » très contraignantes des bâtiments hauts, des espaces d’une souplesse jamais atteinte, permettant une très grande flexibilité des aménagements propres à toute organisation et offrant un ratio d’une performance rare entre surface privative (ou utile) et surface commune (ou servante).


plan d’étage type tour 1 plan d’étage type tour 2


plan rez-de-chaussée

En résumé, nous voulons offrir des objets architecturaux, intégrés urbanistiquement et dotés d’une réelle élégance sculpturale, qui offre un outil d’organisation optimale et extrêmement confortable tout en étant optimal d’un point de vue écologique, ce qu’un certificat BREEAM Excellent confirme.



want to know more about assar or contribute to its continuous development