quand une architecture lumineuse intègre les performances de la technologie pour composer un immeuble de bureaux « Net Zero Energie », certifié BREEAM « Excellent »

quand une architecture lumineuse intègre les performances de la technologie pour composer un immeuble de bureaux « Net Zero Energie », certifié BREEAM « Excellent »

objectifs
Le défi architectural de ce projet, situé à proximité d’autres institutions et de divers moyens de transport dans le centre historique de Bruxelles, comportait 3 aspects :
• création d’un bureau avec des espaces haut de gamme, faciles à utiliser & en contact avec les espaces publics extérieurs
• intégration urbanistique d’un immeuble de bureaux dans un quartier bruxellois à très forte densité de bâti & mise en valeur des vestiges du premier rempart de Bruxelles datant du 14e siècle (classé par le CRMS)
• réalisation d’un bâtiment ultra basse consommation (label zéro-énergie) avec un score BREEAM certifié «Excellent»
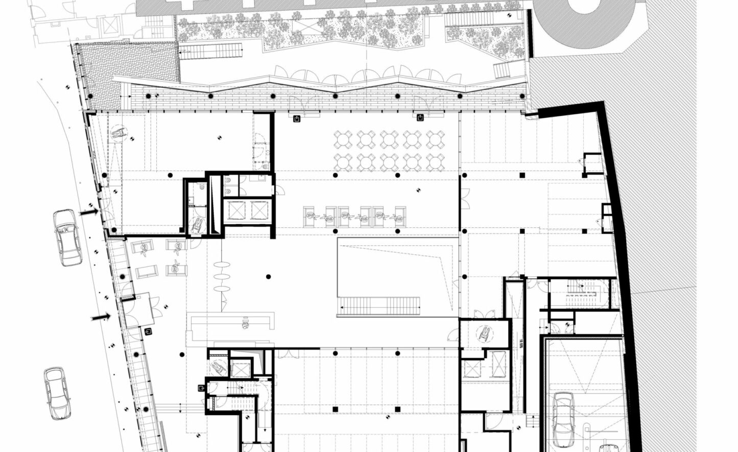
Pour atteindre ces objectifs, assar a conçu un bâtiment compact, articulé autour d’un atrium asymétrique s’ouvrant sur le bas de la ville et les vieux remparts. Cette approche est cohérente avec la politique du patrimoine de la Ville de Bruxelles, qui vise à montrer au public tous les éléments médiévaux résiduels. La présence de l’atrium non seulement permet une organisation flexible et efficace des étages de bureaux, mais confère également au bâtiment une échelle et un prestige conformes à ses ambitions.
Le bureau d’études Setesco a conçu une structure répondant parfaitement aux attentes d’assar : un ingénieux système de poutrelles-colonnes permettant de développer la nature paysagère et aérienne des espaces, tandis que les vieux murs étaient, selon le cas, munis de goujons ou doublés pour garantir leur conservation. Grâce à la nature compacte du complexe, il a été possible d’utiliser des éléments techniques et architecturaux permettant de satisfaire à l’objectif : basse consommation d’énergie et score BREEAM certifié «Excellent».

| program | démolition d’un bâtiment existant & reconstruction d’un immeuble de bureaux passif |
| client | AXA Real Estate Investment Belgium |
| address | rue Treurenberg 16/28, 1000 Bruxelles |
| building type | travailler |
| status project | achevé |
| size | 12.130 m² |
| team | architecte : assar bureau d’études stabilité : Ellyps bureau d’études techniques spéciales : Ellyps entrepreneur : Democo |

Les architectes d’assar ont utilisé un design complexe de façon à pouvoir l’intégrer le plus possible au paysage urbain existant. Le projet Treurenberg devait respecter l’empreinte au sol du bâtiment initial, et en même temps libérer l’enceinte médiévale et augmenter la quantité de rayonnement solaire sur les parcelles voisines.
La lecture et l’observation du nouveau bâtiment par le public devaient être accessibles depuis les espaces publics, en particulier la Place de Louvain et la Rue Royale. L’échelle et les lignes constitutives des façades sont empruntées à ce cadre et à l’environnement à très forte densité de bâti – un mélange de logements et immeubles de bureaux anciens et modernes – avec des ouvertures directes sur les différentes perspectives alentour. Les architectes ont souhaité « briser » la perception de hauts bâtiments imposants en recouvrant les deux étages sommitaux de panneaux photovoltaïques noirs mats pour créer un second volume nettement différencié.
La recherche d’une luminosité naturelle a poussé les concepteurs du projet à proposer une volumétrie compacte, organisée autour d’un grand atrium s’étendant sur les 8 étages du bâtiment. Ce concept permet également une organisation flexible des étages de bureaux et confère au site une identité prestigieuse. Le bâtiment possède une vaste entrée lumineuse sur deux niveaux. Sa volumétrie est adaptée au contexte du bâti environnant, sur le plan tant des dimensions que des matériaux et ouvertures de fenêtres.
La présence de l’atrium non seulement permet une organisation flexible et efficace des étages de bureaux, mais confère également au bâtiment une échelle et un prestige conformes à ses ambitions. Au rez-de-chaussée, l’atrium donne sur un patio extérieur, aménagé de façon à mettre en valeur les vestiges historiques présents sur le site. La création de ce patio a nécessité de reculer la limite du bâtiment, ce qui donne l’impression d’une 3e façade et renforce l’éclairage naturel des espaces intérieurs. En haut, à partir du 5e étage, l’atrium s’élargit à nouveau pour former un espace entièrement vitré prolongé par une terrasse, qui offrent l’un et l’autre une vue exceptionnelle sur les toits de Bruxelles.


La construction d’un nouveau bâtiment nous a permis de reprendre à zéro la conception énergétique de l’édifice. Les ambitions en termes de performances à atteindre ont évolué grâce aux améliorations successives apportées par les concepteurs. Une basse consommation d’énergie telle que l’exige la certification BREEAM – est atteint au moyen d’une isolation renforcée, d’une étanchéité à l’air (mesures assurant une qualité d’air intérieur optimale) et d’une volumétrie globalement compacte. Le bâtiment respecte donc les critères de la norme « bâtiment passif » et du label « zéro-énergie ». Les besoins énergétiques résiduels sont compensés par des sources auxiliaires naturelles, à savoir une grande installation de panneaux photovoltaïques.
Le bâtiment renforce son caractère durable par différents aspects complémentaires, par ex. des menuiseries en bois (peu d’aluminium), des matériaux durables sans émission de COV (composés organiques volatils), la réutilisation des eaux pluviales dans les installations sanitaires ou encore un système complet de compteurs électriques répartis suivant les surfaces louées.
Enfin, grâce à l’étude des niveaux d’éclairage, le bâtiment a été certifié BREEAM en 2018 avec un score de 74,2% (« Excellent ») pour une consommation d’énergie primaire de 44,74 kWh/m²/an et un besoin en chauffage net de 7,5 kWh/m²/an.
Une particularité du bâtiment est qu’il satisfait à ses propres besoins en énergie. L’édifice devient ainsi le premier immeuble de bureaux présentant un bilan énergétique neutre à Bruxelles. La compensation exigée par les critères de consommation d’un bâtiment passif est assurée par la production d’énergie durable des panneaux photovoltaïques disposés sur le toit et les étages supérieurs. Ces panneaux couvrent une surface de 1.134 m² et produisent en théorie 142 MWh/an. Cette compensation permet de satisfaire aux exigences du label « zéro-énergie ».

• certification : BREEAM « Excellent »
Le bâtiment, ses équipements et ses finitions respectent les critères d’un bâtiment « zéro-énergie » et ceux du score BREEAM «Excellent», grâce entre autres :
• à une architecture intégrée
• à une excellente isolation du bâtiment
• à une consommation d’énergie 6 fois inférieure à la valeur moyenne à Bruxelles
• à l’utilisation de matériaux durables & réutilisables (principe de circularité)
• à la réutilisation des eaux de pluie par les équipements sanitaires
• aux parkings équipés de bornes de recharge pour les véhicules électriques
• aux compteurs électriques entièrement répartis suivant les surfaces locatives
• aux mesures assurant une qualité d’air intérieur optimale
• à l’éclairage naturel offrant un confort optimal pour les collaborateurs
• 49 emplacements de vélos & des locaux de douches H/F avec vestiaires

En 2016, gagnant d’un MIPIM Award 2016 dans la catégorie « projet le plus innovant sur le plan environnemental », Cannes, France.


coupe 1 toiture, penthouse, panneaux photovoltaïques


rez-de-chaussée

coupe 2

want to know more about assar or contribute to its continuous development