comment un concept architectonique de 6 maisons interreliées ouvre la voie à 24 logements autonomes pour des personnes handicapées
comment un concept architectonique de 6 maisons interreliées ouvre la voie à 24 logements autonomes pour des personnes handicapées

Baltissimmo S.A. construit la « Villa Madiba » pour le compte de l’ASBL Ubuntu Achtkanter, une maison de soins comptant 24 logements, dans lesquels des personnes handicapées peuvent vivre avec le plus d’autonomie possible toute leur vie. Le bâtiment accorde également une attention particulière aux fonctions communes et aux services d’assistance.
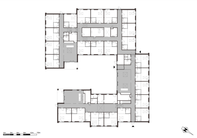
Le client disposait de trois terrains attenants pour villas à proximité du siège de l’ASBL Ubuntu. L’ambition de loger l’équivalent de 8 adultes par parcelle risque de densifier considérablement le quartier. Les possibilités collectives qu’offre un ensemble en maillage réduisent au maximum la taille du projet et optimisent la prestation de soins. Les espaces communs sont volontairement disposés autour de la salle extérieure collective. Les résidents sont encouragés à (apprendre à) vivre en autonomie. La qualité de vie individuelle est donc garantie par des espaces extérieurs personnels et des portes d’entrée. Enfin, la granulométrie de l’environnement villageois est imitée au moyen d’accents de volumétrie et de matérialisation.


| program | nouveaux logements pour personnes handicapées |
| client | Baltissimmo S.A. |
| address | Bevrijdingslaan 36-40 • 8580 Avelgem |
| building type | habiter • soigner |
| status project | achevé |
| expertises | architecturearchitecture d’intérieurbim |
| size | 1.700 m² |
| team | • client : Baltissimmo S.A. • maître d’ouvrage : ASBL Ubuntu Achtkanter • entrepreneur : Bekaert Building Company • bureau d’études stabilité : BM Engineering • bureau d’études équipements techniques : BM Engineering • coordination de la sécurité : IVC consult |

La convivialité a été l’un des principaux piliers du concept. Sur le plan architectural, il a été réalisé en divisant le bâtiment en 6 maisonnettes interreliées, avec un rez-de-chaussée et un toit en pente. Trois maisonnettes sont situées côté rue et renvoient ainsi à une typologie reconnaissable dans le paysage de la rue. Les trois autres maisonnettes sont situées à l’arrière et forment un U qui ceint la cour intérieure. Chaque unité résidentielle a ses propres jardins avant et porte d’entrée. Un sentier pédestre fait le tour du bâtiment et rejoint également les terrains arrière de l’ASBL Ubuntu.
Les voitures sont bannies du site et trouvent leur place au kiss & ride dans la rue ou en sous-sol. Le bâtiment abrite 3 espaces de vie communs, avec des cuisines entièrement équipées. Dans les studios aussi, il est possible de prévoir une kitchenette. En effet, l’adaptabilité personnelle contribue très fortement à la convivialité. Un local d’accompagnant, avec chambre à coucher et salle de bain privatives, offre toutes les commodités pour une bonne nuit de sommeil et garantit une aide efficace et un accompagnement personnel, au besoin.

Le public cible de la « Villa Madiba » était très diversifié : tant le degré de handicap (mental et physique) que l’âge pouvaient varier considérablement. C’est pourquoi l’adaptabilité était un pilier important du projet. Combiner cette adaptabilité avec une accessibilité totale et la convivialité a été ici le principal défi à relever.
Dans chaque studio, vous pouvez opter pour une kitchenette facilement démontable et pour une salle de bain avec ou sans w.c., selon le degré de soins. En effet, un w.c. qui n’est jamais utilisé occupe un espace précieux. Les supports peuvent également être retirés s’ils ne sont pas nécessaires. Des efforts maximaux ont été consentis pour dissimuler les éléments de soins nécessaires. Ainsi, le lève-personne de la salle de bains wellness commune se range dans une armoire lorsqu’il n’est pas utilisé et les armoires des espaces de vie communs peuvent être verrouillées de manière invisible avec des serrures aimantées. Nous sommes convaincus que tous ces détails contribuent à créer un cadre de vie « plus normal ».



Le team de construction a délibérément choisi de placer tous les studios au rez-de-chaussée afin que chaque résident ait sa propre porte d’entrée avec numéro et sonnette de porte. Cela accroît considérablement le sentiment d’autonomie. Vous pouvez recevoir vos visiteurs directement, sans qu’ils aient à traverser le bâtiment.
D’un point de vue architectural, la typologie de la « maison » a servi de point de départ. Le projet a été réalisé sur 3 terrains pour villas et se caractérise donc, côté rue, par 3 maisonnettes. Avec les 3 maisonnettes de l’arrière, une cour fermée a été créée pour que les résidents puissent avoir leur intimité et bénéficier d’une totale sécurité. Le porche qui donne accès à cette cour est à l’abri des regards, ce qui évite le sentiment d’enfermement.
En laissant la pente des toits ouverte dans les espaces de vie et les couloirs, la promenade dans le bâtiment ne risque jamais d’être ennuyeuse et triste ; elle en devient fascinante et variée. La hauteur confère également une certaine grandeur au projet. Cette hauteur et le surcroît de lumière du jour qui passe à travers les lucarnes augmentent considérablement la sensation d’espace.
Du point de vue de la matérialisation, les toits et les façades sont finis en ardoises en 3 couleurs nuancées ; les façades de tête ont été finies en padouk pour apporter à l’ensemble un aspect chaleureux et accueillant.
Le client, l’exploitant et nous-mêmes sommes très fiers du résultat. La Villa Madiba est une réussite architecturale. Dans ce projet, un handicap ne constitue pas une entrave : il permet à chacun de s’épanouir avec dignité dans un beau cadre de vie.


Les choix énergétiques ont été largement déterminés par le groupe cible : le confort thermique est très important pour les personnes handicapées. Pour disposer d’un contrôle individuel sur le refroidissement et le chauffage, nous avons décidé de travailler avec des ventiloconvecteurs entraînés par une pompe à chaleur air-eau.
Le concept des différentes maisons se reflète également dans la technologie : chaque maison a sa propre unité de ventilation.
La climatisation et le chauffage sont centralisés. Un grand oued extérieur a été aménagé pour l’infiltration nécessaire des eaux pluviales. Nous avons ainsi paré à l’éventualité où les citernes d’eau de pluie seraient complètement remplies.




want to know more about assar or contribute to its continuous development