nouveaux logements pour adultes mobiles avec TSA (50 logements)

nouveaux logements pour adultes mobiles avec TSA (50 logements)

À proximité du Boekenbergpark et de l’aéroport d’Anvers, le groupe de soins Village Reine Fabiola n° 2 asbl a construit deux nouveaux groupes résidentiels dans lesquels des personnes atteintes d’autisme peuvent vivre en autonomie avec un accompagnement. Ils hébergent une vingtaine d’adultes relativement autonomes et une trentaine d’adultes nécessitant des soins plus lourds.
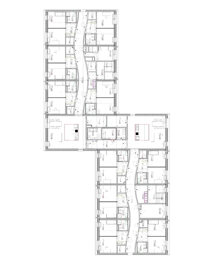
Les deux complexes sont situés dans des quartiers résidentiels ordinaires. Les bâtiments se composent de volumes en quinconce. Chacun d’eux offre de l’espace pour deux groupes de vie : un au rez-de-chaussée et un à l’étage.
Chaque groupe d’habitation comprend 5 logements, qui sont individuellement mis en valeur par une variation des hauteurs de corniche. Cette variation est obtenue en inversant la direction du toit en pente, ce qui crée une articulation des façades qui s’inscrit dans l’échelle de l’environnement. Les façades sont revêtues d’ardoises naturelles d’Afrique du Sud, soigneusement sélectionnées dans une palette de couleurs variées.


| program | nouveaux logements pour adultes mobiles avec TSA (50 logements) |
| client | Village Reine Fabiola n° 2 ASBL |
| address | Tirolerhof : August Van Putlei 56, 2150 Borsbeek • Drakenhof : Mortselsesteenweg 55, 2100 Deurne |
| building type | habiter • soigner |
| status project | achevé |
| expertises | architecturearchitecture d’intérieurgestion de projetscoordination sécurité & santéprogrammation |
| offices | |
| size | 4.471 m² |
| team | • client : Village Reine Fabiola n° 2 ASBL • bureau d’études techniques spéciales : Botec • bureau d’études structure : Fraeye & Partners • entrepreneur : Bouwbedrijf van der Kinderen |
On peut décrire l’autisme comme une incapacité à filtrer les stimuli de l’environnement. La conception de leur cadre de vie doit limiter les stimuli autant que possible. Un défi exceptionnel pour les concepteurs, généralement censés faire exactement le contraire. Le résultat, vu de l’intérieur en particulier, est donc très sobre.
Ce qui est remarquable ici, c’est l’inversion complète, où l’on passe d’une vie communautaire à une vie individuelle. En mettant l’accent sur le logement individuel et en réduisant l’espace commun au maximum, un changement complet s’est opéré dans le fonctionnement. Les accompagnateurs, dont les activités consistaient principalement à gérer la « zone de conflit » commune, peuvent désormais se concentrer sur l’accompagnement individuel. Les proches se sentent plus investis : ils rendent visite à « leur » résident, sans avoir à s’asseoir aux côtés des autres. On constate une participation beaucoup plus importante de la famille, avec ce type de logement.
Les problèmes spécifiques, entre autres la sensibilité aux stimuli, propre aux personnes autistes, nécessitent un concept d’habitation ménageant un espace individuel suffisant. Les groupes de vie se composent de 5 résidents aux besoins similaires. Compte tenu de la grande différence dans les besoins individuels, il est très important de disposer d’une infrastructure qui permette une différenciation dans le concept de logement. Les logements ont ainsi été équipés de parois mobiles, de sorte que chaque studio peut être agencé de 3 manières et adapté aux possibilités uniques de chaque résident. Cette adaptabilité se retrouve également dans le mobilier fixe.



L’une des caractéristiques les plus marquantes de l’intérieur est le tracé légèrement sinueux des couloirs. Le choix de ce mouvement ondulatoire est délibéré. Cette forme reposante rompt avec l’image de l’« institution » et offre au résident la possibilité d’explorer discrètement l’environnement, sans faire face à la longueur entière du couloir. De plus, le couloir est ainsi débarrassé des recoins et des éléments durs auxquels on peut se blesser ou s’accrocher. Pour des raisons similaires, le choix s’est porté sur un chauffage par le sol en lieu et place de radiateurs et des cadres de porte en acier à joints creux ont été installés.
Compte tenu de la sensibilité aux stimuli souvent forte des résidents, une grande attention a été portée au concept acoustique. C’est pourquoi les logements individuels sont complètement isolés acoustiquement les uns des autres et les murs sont en brique silicocalcaire. La séparation acoustique a également été étendue à l’installation technique : la ventilation est strictement séparée d’un logement individuel à l’autre. La finition des murs et des sols dans les salles de bains est comparable, avec ses carreaux de céramique de grand format. En effet, de petits carreaux pourraient amener certains résidents à se focaliser dessus et à les compter régulièrement.

Tirolerhof Drakenhof

En prévision du resserrement des normes d’isolation et de la hausse des prix de l’énergie, les logements sont déjà équipés d’une isolation supérieure aux prescriptions actuelles. Le recours à des toits végétalisés exerce également un effet favorable sur la gestion de la chaleur. De plus, ils forment un tampon supplémentaire pour le bruit ambiant et retardent l’évacuation de l’eau de pluie.
La durabilité se traduit également dans le langage des formes. Les logements se caractérisent par une interprétation contemporaine d’un design reconnaissable, dont le logement traditionnel à toit en pente constitue le fondement. Il en résulte une série de logements individuels présentant manifestement les caractéristiques de maisons, mais qui sont néanmoins perçus comme une seule unité. Ce langage des formes, associé à l’application créative sur la façade d’un matériau durable comme l’ardoise naturelle, garantit que le bâtiment conservera son intérêt architectural à l’avenir.
L’utilisation des matériaux et le design ne sont pas seuls à influencer la valeur future de l’infrastructure : grâce au principe de commutation, il est possible de réaliser des extensions assez facilement.
• valeur K : 21
• niveau E : 69



want to know more about assar or contribute to its continuous development